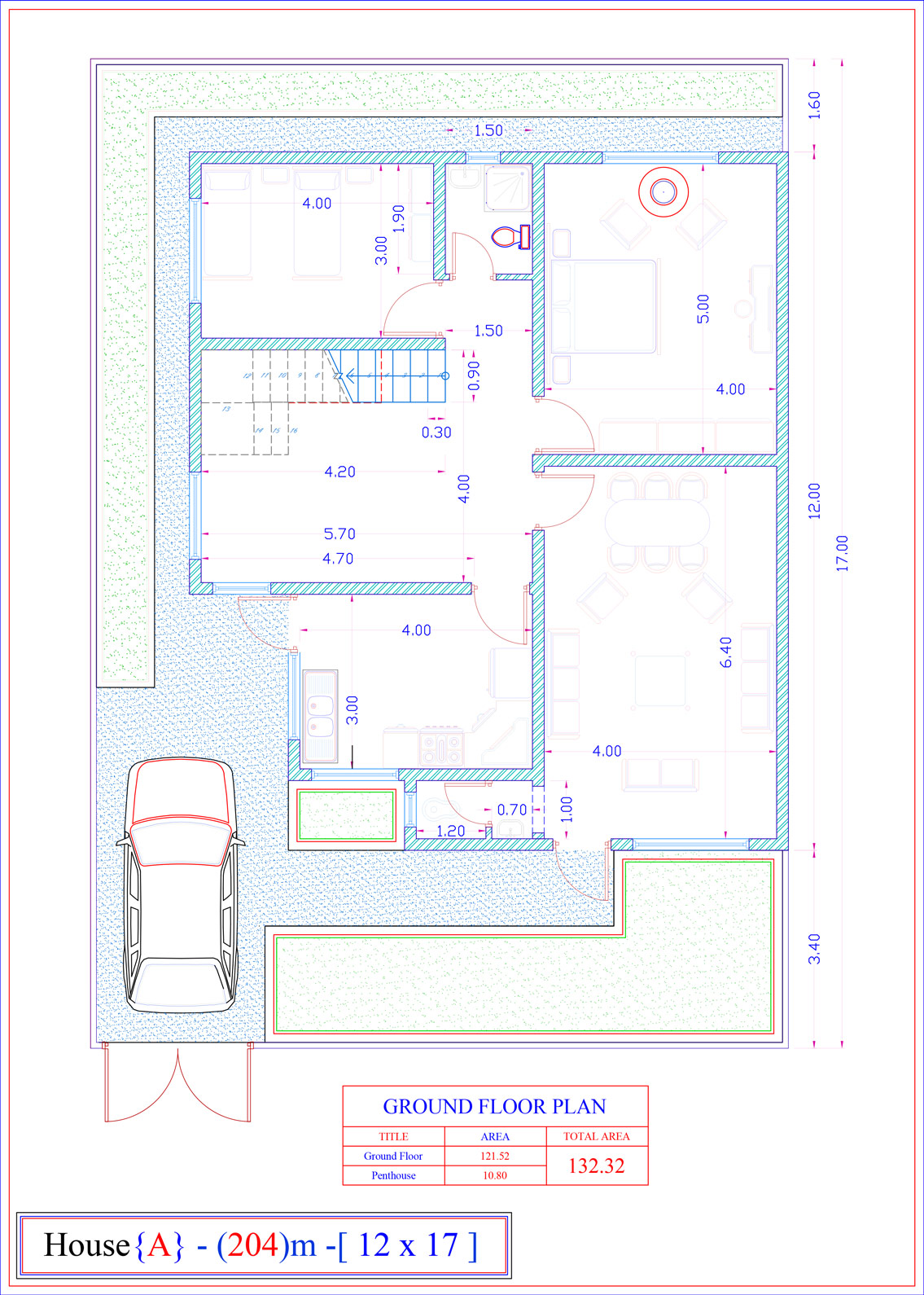
Zone 4
Location: Erbil
Area: 300 M2
Copyright Eskan Investment © 2020
Design and development by Lucid Source