Ashti City 1

Location: Erbil – Kasnazan

Status: 100% Constructed

Units: 1,520 Units

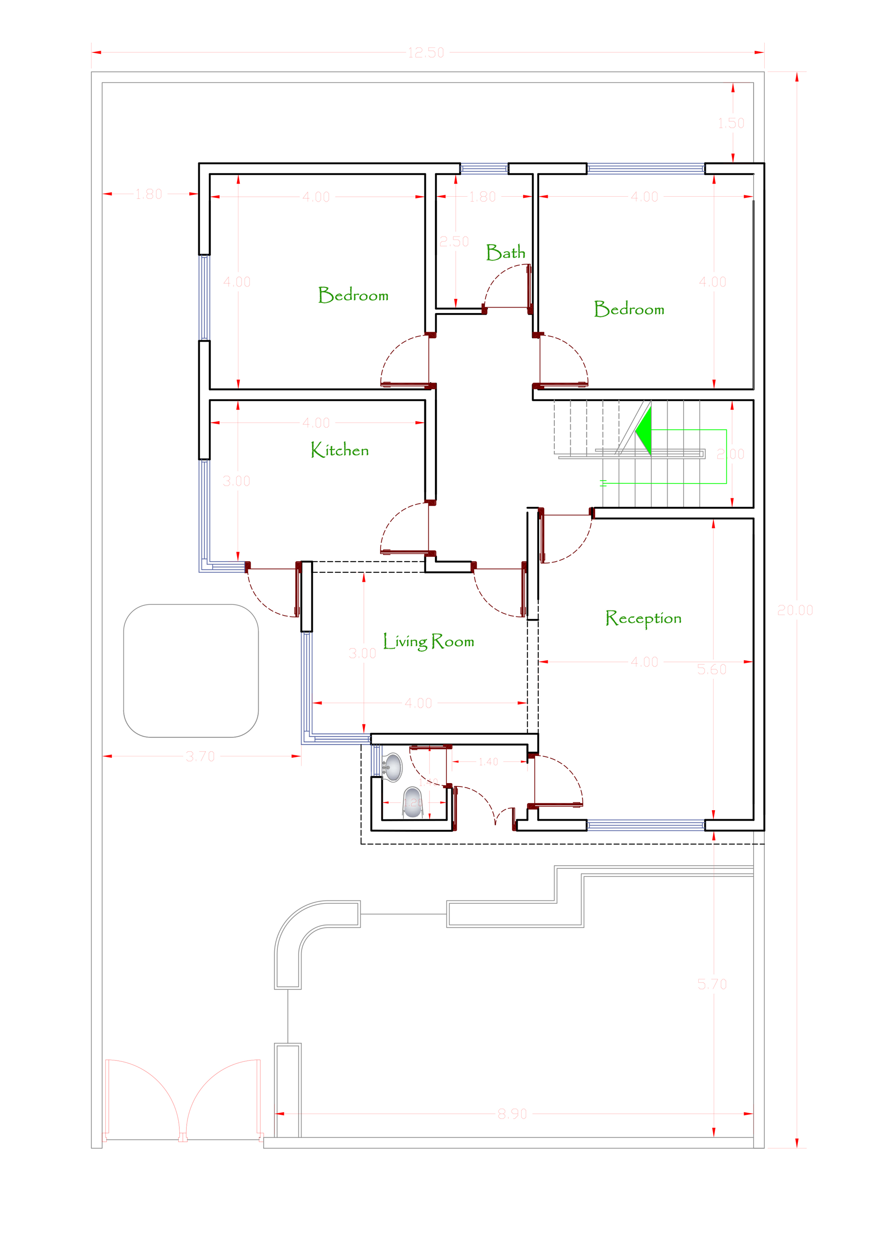
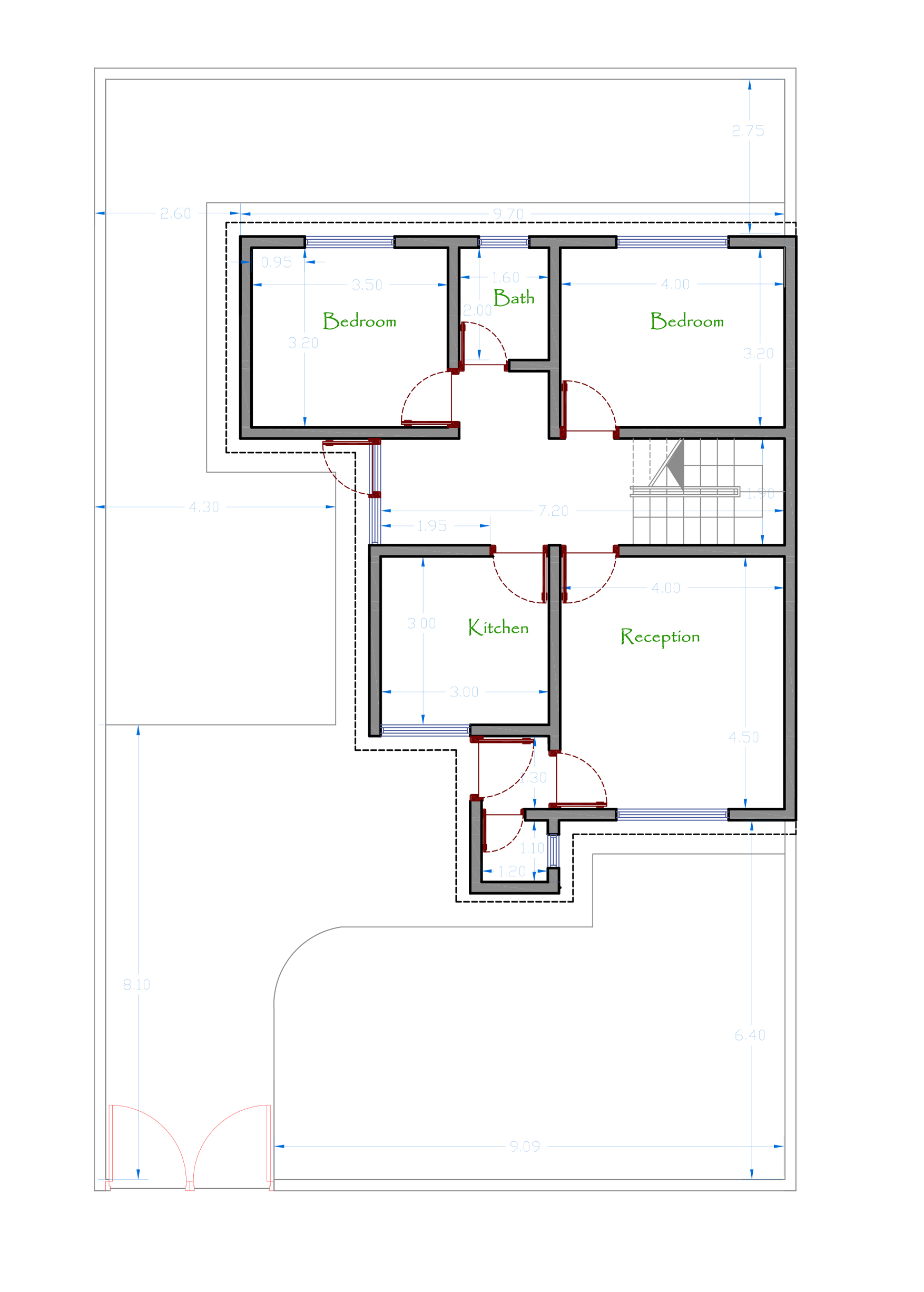
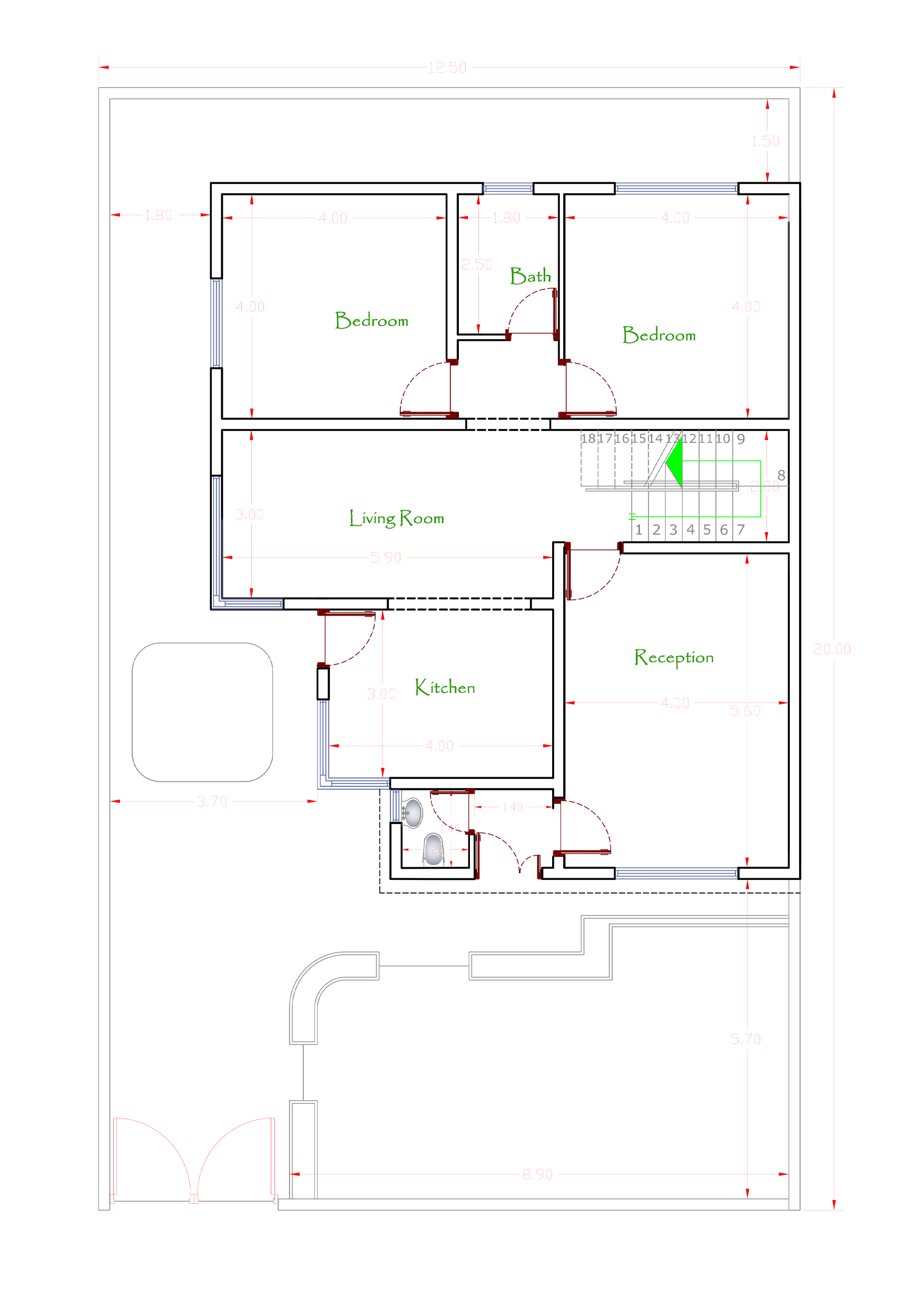
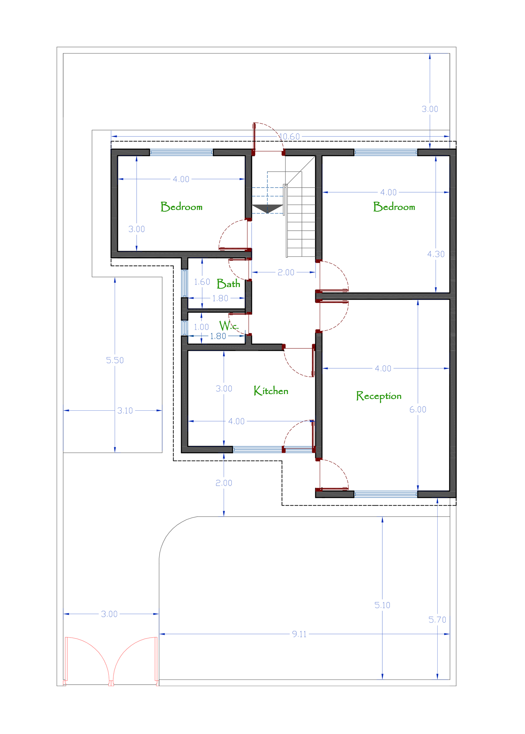
Ashti City 1 is the first constructed project of Eskan Company that is located on near Kasnazan town in Erbil City, consists of 1520 low-cost housing units. This project was completed in 2010. The residents give high rate of satisfaction due to its quality of the services,networks of streets, pure water, sewage systems and electricity that has been provided within the project.